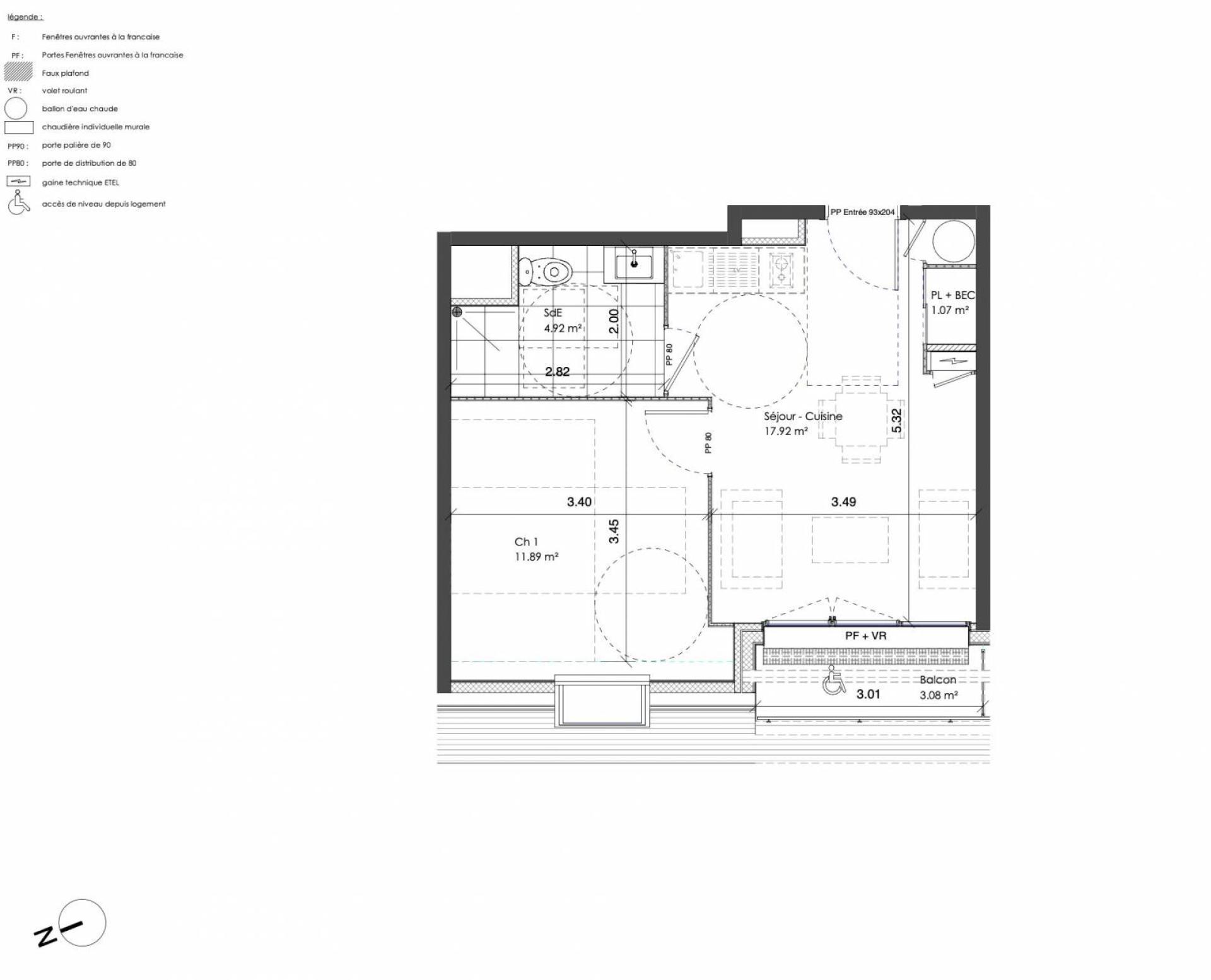
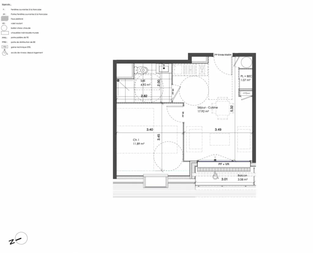
Jourdainne Aktion Immobilier vous propose à la vente en VEFA, un appartement de 36m² situé au 3ème et dernier étage d'une résidence de standing avec ascenseur à Darnetal, éligible Pinel et bénéficiant d'une TVA réduite à 5,5%.
Cet appartement dispose d'une entrée donnant sur une belle pièce à vivre avec cuisine ouverte donnant sur un balcon d'environ 3m². Il se compose également d'une chambre et d'une salle de douches. Vous profiterez également d'un emplacement de parking couvert au RDC, accessible grâce à un accès sécurisé.
Livraison prévue pour septembre 2024, cet appartement est une opportunité idéale pour les investisseurs locatifs ou les primo-accédants (éligible prêt à taux zéro) cherchant à se constituer un patrimoine immobilier. De plus, les frais de notaire sont réduits, pour un investissement encore plus attractif.
Située en plein cœur de Darnétal, rue de la Ferme, la résidence offre un emplacement de choix, à quelques pas des écoles, des commerces et de la ligne de TEOR. Vous bénéficierez ainsi d'une liaison directe et quotidienne avec le centre-ville de Rouen et ses environs. Les honoraires sont à la charge du vendeur.
Ne manquez pas cette opportunité et contactez-nous dès maintenant pour organiser une visite !
| % du montant des honoraires | 5% |
| Prix net du bien | 160000€ |
| Montant des honoraires inclus | 8000 € |
| Année de construction | 2023 |
| Cuisine | Aménagée |
| Salle de bains | 1 |
| Bien en copropriété | Oui |
| Nb Lots Copropriété | 95 |
| Dont lots d'habitation | 58 |
| Procédures en cours | Aucune |
